ZURÜCK

Modulhaus SEVILLA

Modernes Design & Höchster Komfort

  1. pl
  2. de

 Angebot anfordern

 Angebot anfordern

Premium-Standard der Serie SEVILLA

Technische Details

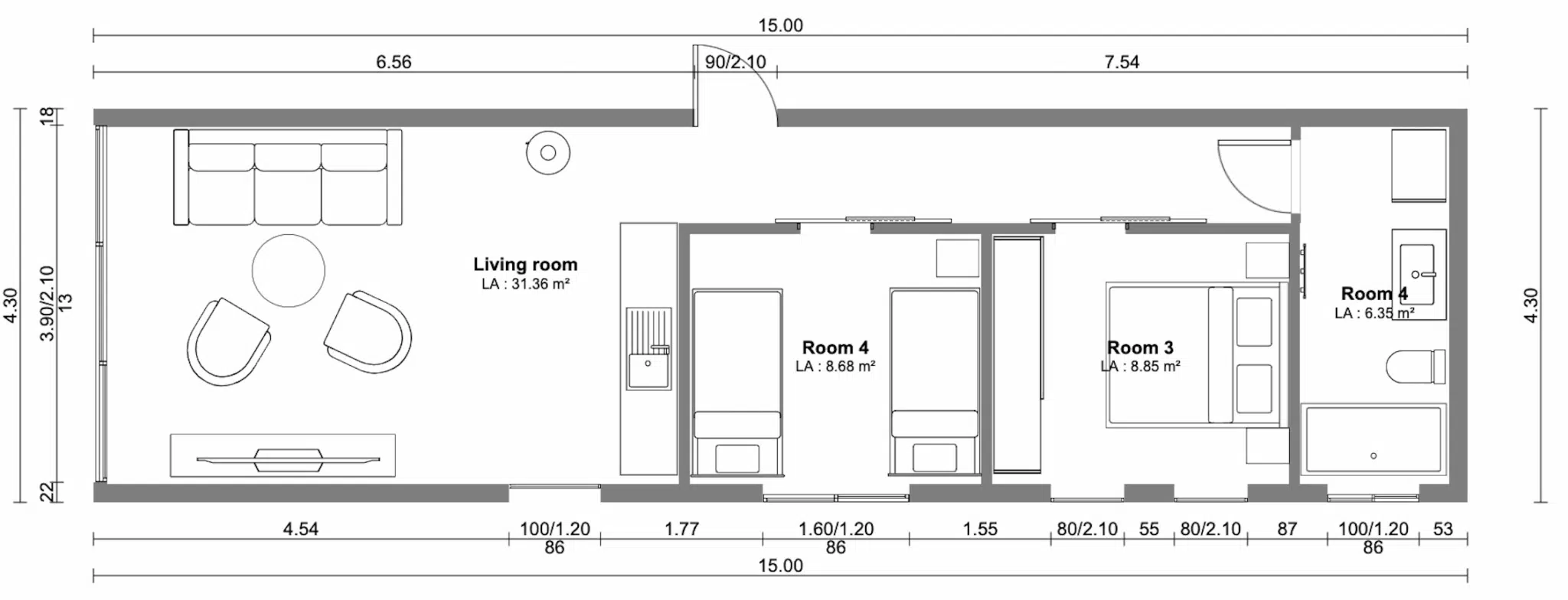
HAUS SEVILLA 65

Abmessungen des Hauses: 4,30 m x 15,00 m

Höhe: 3,20 m

Wohnfläche: 55,2 m²

Baugrundfläche: 64,5 m²

Dachform: Pultdach oder Satteldach nach Wahl

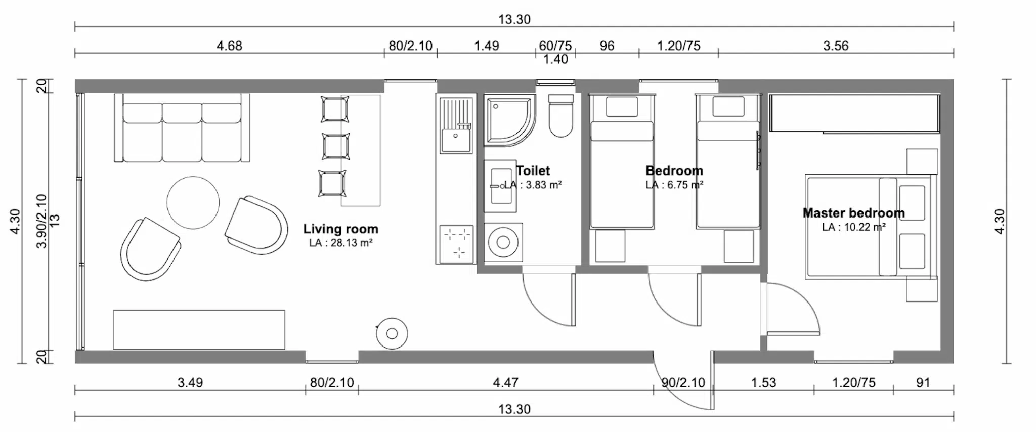
HAUS SEVILLA 57

Abmessungen des Hauses: 4,30 m x 13,30 m

Höhe: 3,20 m

Wohnfläche: 47,5 m²

Baugrundfläche: 57,2 m²

Dachform: Pultdach oder Satteldach nach Wahl

Verfügbare Hausmodelle SEVILLA

Zusatzlich in Modulhäuser-Standard

  •  Küche: L-formige Kuche mit Kuhlschrank, Backofen, elektrischer Vier-Zonen-Kochplatte, Geschirrspuler, Spule und Dunstabzugshaube , Alle Gerate von der Marke Bosch.
  • Badezimmer: Duschkabine 80 cm, Spiegel, Hangeschrank mit Waschbecken und Armatur, Kompakt-WC.
  • Garantie: Unsere Hauser werden mit einer 50-jahrigen Garantie auf die Konstruktion, 25 Jahre auf das Dach und die Fassade sowie mit einer 2-jahrigen Garantie auf ausgewahlte Bauelemente geliefert.

Höchste Energieeffizienz gewährleistet.

Boden: 130 mm offenzelliger PUR-Schaum.

Außenwände: 170 mm offenzelliger PUR-Schaum.

  • Wärmedämmung:Dach: 190 mm offenzelliger PUR-Schaum.
  • Wände und Dach: Seitenwande und Dach mit langlebigen Pruszynski-Falzblechen, erganzt durch VOX-Fassadenverkleidung in Ihrer Wunschfarbe.

Wandmontierte Luftungsanlage mit Wärmerückgewinnung.                                      Mechanische Lüftung vorgesehen.

  • Haustechnik: Ein leistungsstarkes Klima-Multisplit-Gerät HAIER 3S mit Heizfunktion im Ess- Kochbereich und Schlafzimmer inkl. Warmwasserbereitung (Brauchwasser, 90L Wasserspiecher), im Badezimmer Handtuchheizkörper, Gästezimmer Wand Elektroheizkörper. 

Erhältlich.

7 Kammer, in 2 verschieden Farben

Eingangstür mit verbessertem                          Wärmedurchgangskoeffizienten  

(U-Wert ca. 0,8–1,0W/m²K)

  • Fenster und Türen:Dreifach verglaste Fenster Aluplast,                 

Boden ausgelegt mit Laminatpaneelen in frei                  wählbarer Farbe.                                                                   

Innentüren in Weiß oder Anthrazit.  

Elektrische Ausrüstung und Beleuchtung.

  • Innenausbau:Innenwände fertiggestellt mit STRAMA-Platten (optional auch glatte Wände mit FORESTIA-Platten oder Holzverkleidung erhältlich).
  • Konstruktion: Stahlrahmen aus besonders widerstandsfahigen Profilen 140x80x5, 80x80x3, 80x40x4 sowie aus C24-Konstruktionsholz.

 Angebot anfordern

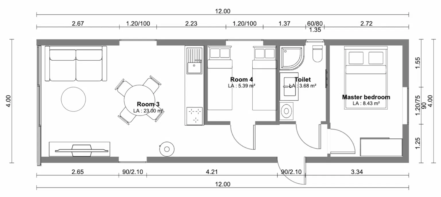
HAUS SEVILLA 48

Abmessungen des Hauses: 4,00 m x 12,00 m

Höhe: 3,20 m

Wohnfläche: 40,5 m²

Baugrundfläche: 48,0 m²

Dachform: Pultdach  oder Satteldach  nach Wahl

Sevilla ist eine kleinere Serie unserer Modulhauser, entwickelt fur maximalen Wohnkomfort auf begrenzter Flache. Die Modelle sind mit einer bebauten Flache von 48 m² bis 65 m² erhaltlich und bieten durchdachte Grundrisse sowie eine hohe Funktionalitat auf jedem Quadratmeter. In dieser Ausfuhrung betragt die Gesamthohe des Hauses 3,2 m, was fur ausgewogene Proportionen, mehr Tageslicht im Innenraum und ein großzugiges Raumgefuhl trotz kompakter Abmessungen sorgt. Die Sevilla-Serie verbindet moderne Architektur, asthetisches Design und die fur unsere Hauser typische hohe Verarbeitungsqualitat. Sie eignet sich ideal als ganzjahriges Wohnhaus sowie als attraktive Investition zur Vermietung. Sevilla steht fur den Beweis, dass ein kleineres Haus große Wohnqualitat bieten kann – ohne Kompromisse bei Komfort und Standard.

ADRESSE

ul. Dworcowa 24

62-230 Witkowo, POLEN

KONTAKT

+48 782-271-267

energiehelden.wn@gmail.com

MENÜ

Strona www stworzona w kreatorze WebWave.

FOLGEN SIE UNS