RETURN

Modulhaus MERIVA

Loft-Design & Großzügiges Raumgefühl

  1. pl
  2. de

Zusatzlich in Modulhäuser-Standard

  •  Küche: L-formige Kuche mit Kuhlschrank, Backofen, elektrischer Vier-Zonen-Kochplatte, Geschirrspuler, Spule und Dunstabzugshaube , Alle Gerate von der Marke Bosch.
  • Badezimmer: Duschkabine 80 cm, Spiegel, Hangeschrank mit Waschbecken und Armatur, Kompakt-WC.
  • Garantie: Unsere Hauser werden mit einer 50-jahrigen Garantie auf die Konstruktion, 25 Jahre auf das Dach und die Fassade sowie mit einer 2-jahrigen Garantie auf ausgewahlte Bauelemente geliefert.

Höchste Energieeffizienz gewährleistet.

Boden: 130 mm offenzelliger PUR-Schaum.

Außenwände: 170 mm offenzelliger PUR-Schaum.

  • Wärmedämmung:Dach: 190 mm offenzelliger PUR-Schaum.
  • Wände und Dach: Seitenwande und Dach mit langlebigen Pruszynski-Falzblechen, erganzt durch VOX-Fassadenverkleidung in Ihrer Wunschfarbe.

Wandmontierte Luftungsanlage mit Wärmerückgewinnung.                                      Mechanische Lüftung vorgesehen.

  • Haustechnik: Ein leistungsstarkes Klima-Multisplit-Gerät HAIER 3S mit Heizfunktion im Ess- Kochbereich und Schlafzimmer inkl. Warmwasserbereitung (Brauchwasser, 90L Wasserspiecher), im Badezimmer Handtuchheizkörper, Gästezimmer Wand Elektroheizkörper. 

Erhältlich.

7 Kammer, in 2 verschieden Farben

Eingangstür mit verbessertem              Wärmedurchgangskoeffizienten  

(U-Wert ca. 0,8–1,0W/m²K)

  • Fenster und Türen:Dreifach verglaste Fenster Aluplast,                 

Boden ausgelegt mit Laminatpaneelen in frei                  wählbarer Farbe.                                                                   

Innentüren in Weiß oder Anthrazit.  

Elektrische Ausrüstung und Beleuchtung.

  • Innenausbau:Innenwände fertiggestellt mit STRAMA-Platten (optional auch glatte Wände mit FORESTIA-Platten oder Holzverkleidung erhältlich).
  • Konstruktion: Stahlrahmen aus besonders widerstandsfahigen Profilen 140x80x5, 80x80x3, 80x40x4 sowie aus C24-Konstruktionsholz.

Premium-Standard der Serie MERIVA

Technische Details

HAUS MERIVA 65

Abmessungen des Hauses: 4,30 m x 15,00 m

Höhe: 3,90 m

Wohnfläche (Erdgeschoss): 55,2 m²

Mezzaninfläche (Antresola): 31,0 m²

Gesamtnutzfläche: 86,2 m²

Baugrundfläche: 64,5 m²

Dachform: Satteldach

Verfügbare Hausmodelle MERIVA

 Angebot anfordern

 Angebot anfordern

 Angebot anfordern

HAUS MERIVA 48

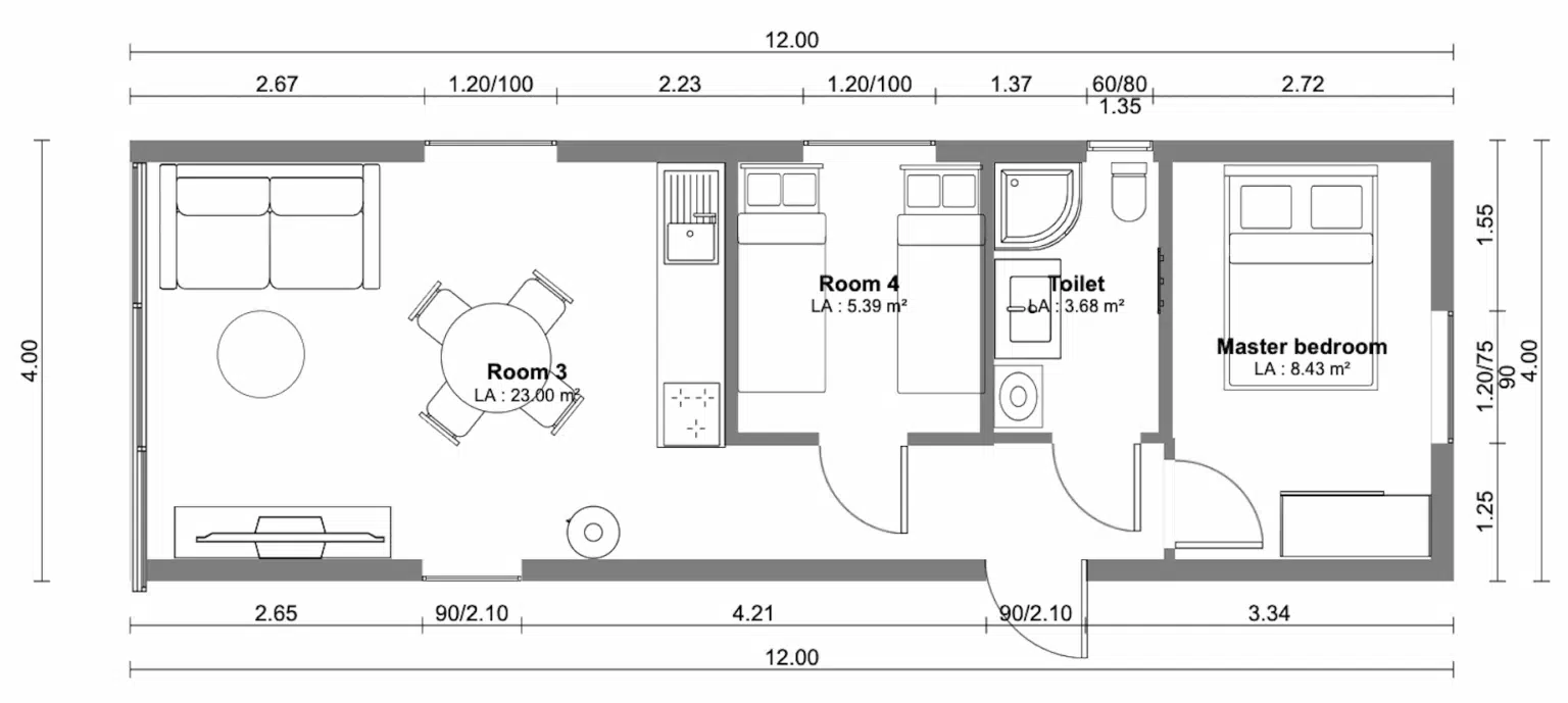
Abmessungen des Hauses: 4,00 m x 12,00 m

Höhe: 3,90 m

Wohnfläche (Erdgeschoss): 40,5 m²

Mezzaninfläche (Antresola): 20,1 m²

Gesamtnutzfläche: 60,6 m²

Baugrundfläche: 48,0 m²

Dachform: Satteldach 

Meriva ist die größere Serie unserer Modulhäuser, erhältlich in den Bebauungsgrößen 48, 57 und 65 m², die kompakten Charakter mit moderner Funktionalität und zusätzlichem Nutzraum verbindet. Das markante Merkmal der Meriva-Häuser ist die Gesamthöhe von 3,9 m sowie die Galerie (Mezzanine), die als zusätzlicher Schlafbereich oder praktische Abstellfläche genutzt werden kann. So gewinnt das Interieur an Komfort und Flexibilität in der Nutzung. Die Meriva-Häuser zeichnen sich durch geräumige Wohnzimmer, komfortable Schlafzimmer und durchdachte Raumaufteilung aus, die maximale Funktionalität und Wohnkomfort gewährleisten. Sie sind die ideale Wahl für alle, die mehr Raum in einem kompakten Modulhaus suchen und die Galerie individuell nutzen möchten. Meriva zeigt, dass größer nicht gleich teurer sein muss – die intelligente Nutzung der Höhe schafft ein Gefühl von Geräumigkeit und Freiheit auf jedem Quadratmeter.

HAUS MERIVA 57

Abmessungen des Hauses: 4,30 m x 13,30 m

Höhe: 3,90 m

Wohnfläche (Erdgeschoss): 49,0 m²

Mezzaninfläche (Antresola): 21,4 m²

Gesamtnutzfläche: 70,4 m²

Baugrundfläche: 57,0 m²

Dachform: Satteldach 

ADRESSE

ul. Dworcowa 24

62-230 Witkowo, POLEN

KONTAKT

+48 782-271-267

energiehelden.wn@gmail.com

MENÜ

Strona www stworzona w kreatorze WebWave.

FOLGEN SIE UNS