{"@context":"https://schema.org/","@graph":[{"@type":"WebPage","@id":"https://www.energiehelden.pl/de/katrina","description":"FOTOWOLTAIKA , PANELE BIPV , FALOWNIKI, CARPORTY , KONSTRUKCJE , PERGOLE, TARASY FOTOWOLTAICZNE ","publisher":{"@id":"https://www.energiehelden.pl#organization"},"url":"https://www.energiehelden.pl/de/katrina","name":"EnergieHelden Natalia Widurska - Zadaszenia tarasów , konstrukcje wolnostojące, carporty , podzespoły do fotowoltaiki, pompy ciepła , panele , fotowoltaika , płoty fotowoltaiczne , pergole "}]} {"@type":"WebPage","name":"EnergieHelden Natalia Widurska - Zadaszenia tarasów , konstrukcje wolnostojące, carporty , podzespoły do fotowoltaiki, pompy ciepła , panele , fotowoltaika , płoty fotowoltaiczne , pergole ","description":"","@context":"http://schema.org","url":"https://www.energiehelden.pl/de/katrina"}

Verfügbare Hausmodelle KATRINA 

HAUS KATRINA 70

Abmessungen des Hauses – 5x10m

  • Höhe    6,50m
  • Wohnfläche   70 m²
  • Baufläche    50 m²

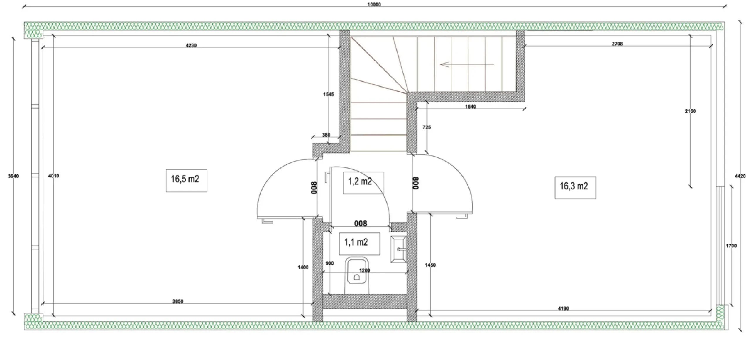
HAUS KATRINA 64

Abmessungen des Hauses – 5x8m

  • Höhe    6,50m
  • Wohnfläche   56 m²
  • Baufläche    40 m²

HAUS KATRINA 55

Abmessungen des Hauses – 5x8m

  • Höhe    6,50m
  • Wohnfläche   52 m²
  • Baufläche    40 m²
  • Mezzanin

HAUS KATRINA 83

  • Höhe    6,50m
  • Wohnfläche   83 m²
  • Baufläche    68 m²

 

HAUS KATRINA  69

  • Höhe    6,50m
  • Wohnfläche   69 m²
  • Baufläche    51 m²

 

HAUS KATRINA 41

  • Höhe    6,50m
  • Wohnfläche   55 m²
  • Baufläche    34 m²

 

Zusätzlich Technische Details im Ausbaustufe Schlüsselfertigen

  • Badezimmer: Waschtischunterschrank mit Waschbecken und Spiegel; Duschkabine und Duschwanne (Durasan); Armaturen von Hansgrohe/Grohe; Unterputz-Set – Vorwandelement + Betätigungsplatte von Schwab; WC-Keramik von Villeroy & Boch; Warmwasserboiler Ariston EVO 80
  • Heizung: Elektrische Heizkörper Thermoval mit Wi-Fi-Steuerung

  • Elektro- und Beleuchtungszubehör: Steckdosen und Schalter in Weiß (Schneider); Erdgeschoss – LED-Spotbeleuchtung; Obergeschoss – Lampen/Wandlampen in Schwarz oder Weiß 4o
  • Innentüren: in Weiß

  • Belüftung: Badezimmer – mechanische Lüftung; Wohnzimmer – Wand-Rekuperation (Blauberg)

 

       WEITERE ZUSATZOPTIONEN SIND EBENFALLS GEGEN AUFPREIS MÖGLICH.

Technische Details Ausbaustufe Standard

  • Konstruktion: Stahlkonstruktion, geschützt mit Korrosionsschutzfarben
  • Wände und Dach: Sandwichbauweise mit Wärmedämmung aus PIR-Schaum – Stärke: 120 mm / 120 mm / 160 mm
  • Fensterrahmen: Warme Montage; Aluminiumprofil mit Dreifachverglasung, beidseitig farbbeschichtet in RAL 7016

  • Fassade: Stehfalzblech in RAL 7016
  • Außenbeleuchtung: Außenlampen, elektrische Außensteckdose

  • Außentür: Warme Montage, Stahltür in RAL 7016
  • Elektroinstallation: Versorgung mit 230 V / 380 V – gemäß Planung

  • Wasser- und Abwasserinstallation: gemäß Planung

  • Fußboden: OSB-Platte /zusätzlich im Ausbaustufe Schlüsselfertigen: Unterbau + PVC-Paneele AC4 mit Sockelleisten (Badezimmer -Feinsteinzeugfliesen).

  • Innenwände/Decke: Fertiggestellt mit Gipskartonplatten (K-G-Platten)                                                                                                                                            Zusätzlich im Ausbaustufe Schlüsselfertigen: Spachtelung und streichfertig gestrichen (Badezimmer – keramische Fliesen bis zu einer Höhe von 150 cm; im Duschbereich bis 200 cm

  • Treppe: Stahlkonstruktion, pulverbeschichtet in Wunschfarbe (Weiß/Schwarz/Anthrazit); Stufen aus Naturholz (Buche/Eiche)

RETURN

KATRINA

  1. pl
  2. de

SCHREIBEN SIE UNS FÜR MEHR INFORMATIONEN

Formen der Bezahlung

Adresse

ul. Dworcowa 24

62-230 Witkowo, POLEN

Kontakt

energiehelden.wn@gmail.com

+48 782-271-267

MENÜ

Folgen Sie uns

Strona www stworzona w kreatorze WebWave.