RETURN

Modulhaus CALLUNA

Luxus & Funktionalität neu definiert

  1. pl
  2. de

Premium-Standard der Serie CALLUNA

Technische Details

Zusatzlich in Modulhäuser-Standard

  •  Küche: L-formige Kuche mit Kuhlschrank, Backofen, elektrischer Vier-Zonen-Kochplatte, Geschirrspuler, Spule und Dunstabzugshaube , Alle Gerate von der Marke Bosch.
  • Badezimmer: Duschkabine 80 cm, Spiegel, Hangeschrank mit Waschbecken und Armatur, Kompakt-WC.
  • Garantie: Unsere Hauser werden mit einer 50-jahrigen Garantie auf die Konstruktion, 25 Jahre auf das Dach und die Fassade sowie mit einer 2-jahrigen Garantie auf ausgewahlte Bauelemente geliefert.

Höchste Energieeffizienz gewährleistet.

Boden: 130 mm offenzelliger PUR-Schaum.

Außenwände: 170 mm offenzelliger PUR-Schaum.

  • Wärmedämmung:Dach: 190 mm offenzelliger PUR-Schaum.
  • Wände und Dach: Seitenwande und Dach mit langlebigen Pruszynski-Falzblechen, erganzt durch VOX-Fassadenverkleidung in Ihrer Wunschfarbe.

Wandmontierte Luftungsanlage mit Wärmerückgewinnung.                                      Mechanische Lüftung vorgesehen.

  • Haustechnik: Ein leistungsstarkes Klima-Multisplit-Gerät HAIER 3S mit Heizfunktion im Ess- Kochbereich und Schlafzimmer inkl. Warmwasserbereitung (Brauchwasser, 90L Wasserspiecher), im Badezimmer Handtuchheizkörper, Gästezimmer Wand Elektroheizkörper. 

Erhältlich.

7 Kammer, in 2 verschieden Farben

Eingangstür mit verbessertem              Wärmedurchgangskoeffizienten  

(U-Wert ca. 0,8–1,0W/m²K)

  • Fenster und Türen:Dreifach verglaste Fenster Aluplast,                 

Boden ausgelegt mit Laminatpaneelen in frei                  wählbarer Farbe.                                                                   

Innentüren in Weiß oder Anthrazit.  

Elektrische Ausrüstung und Beleuchtung.

  • Innenausbau:Innenwände fertiggestellt mit STRAMA-Platten (optional auch glatte Wände mit FORESTIA-Platten oder Holzverkleidung erhältlich).
  • Konstruktion: Stahlrahmen aus besonders widerstandsfahigen Profilen 140x80x5, 80x80x3, 80x40x4 sowie aus C24-Konstruktionsholz.

 Angebot anfordern

HAUS CALLUNA 129

Abmessungen des Hauses:

MOD 1 - 4,30 m x 15,00 m

MOD 2 - 4,30 m x 15,00 m 

Höhe: 

MOD 1 - 3,90 m SATTELDACH

MOD 2 - 3,20 m FLACHDACH

Wohnfläche (Erdgeschoss): 106,98 m²

Baugrundfläche: 129,00 m²

 Angebot anfordern

 Angebot anfordern

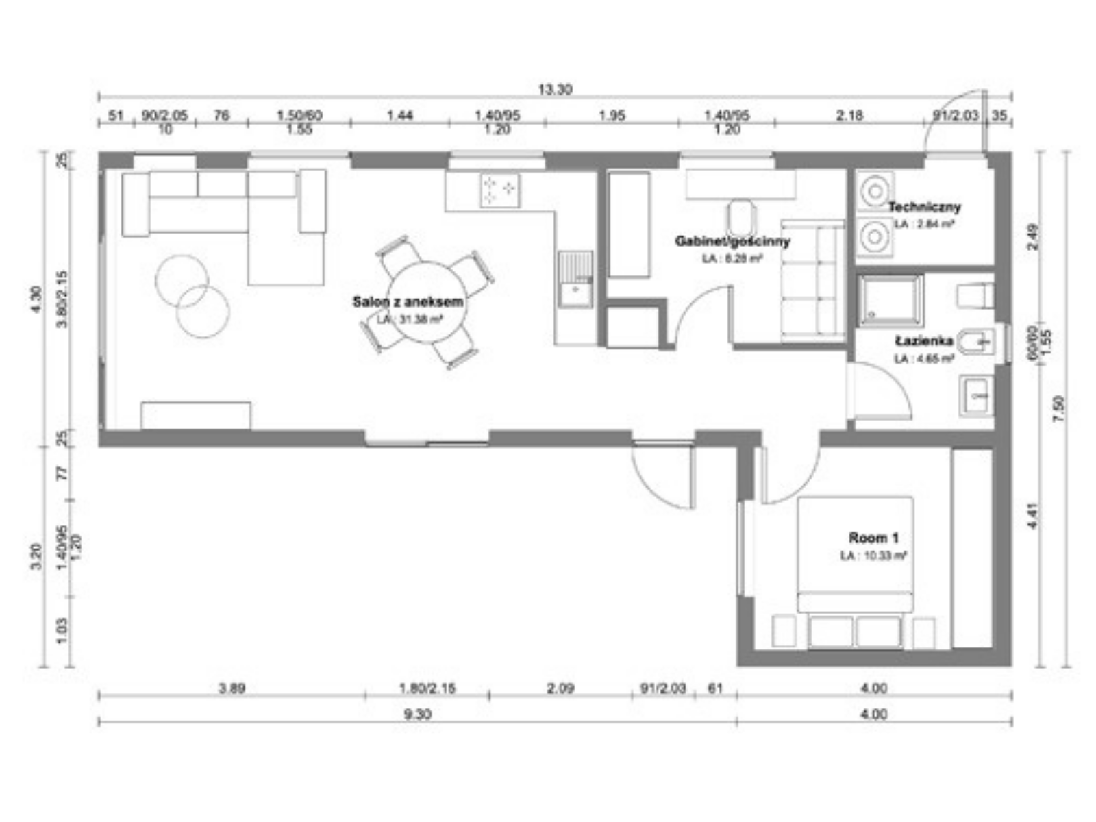
HAUS CALLUNA 70

Abmessungen des Hauses:

MOD 1 - 4,30 m x 13,30 m

MOD 2 - 4,00 m x 3,20 m 

Höhe: 

MOD 1 - 3,90 m SATTELDACH

MOD 2 - 3,20 m FLACHDACH

Wohnfläche (Erdgeschoss): 57,48 m²

Mezzaninfläche (Antresola): 15,00 m²

Baugrundfläche: 70,00 m²

Calluna ist ein Modulhaus, das für die anspruchsvollsten Nutzer konzipiert wurde, die mehr Nutzfläche und maximale Funktionalität erwarten. Das Haus Calluna ist eine einzigartige Verbindung von zwei Stilen und Segmenten: Meriva-Segment – in Standardgröße, mit einer Gesamthöhe von 3,9 m und geneigtem Dach, das Raum und die charakteristische Leichtigkeit des Innenraums bietet; Sevilla-Segment – in Standardhöhe von 3,2 m mit Flachdach, das eine moderne, kompakte Form sowie elegante und funktionale Innenräume bietet. Das Haus bietet genügend Platz für Bewohner und Gäste, mit der Möglichkeit, bis zu vier Schlafzimmer und zwei Badezimmer zu gestalten. Außerdem besteht die Option, eine vollwertige Terrasse zu realisieren, um den Außenbereich komfortabel zu nutzen. Die Häuser Calluna sind in drei Größenvarianten erhältlich – von 70 m², über 90 m² bis hin zu 129 m² bebauter Fläche, sodass jeder Nutzer die passende Größe wählen und ein Haus finden kann, das seinen Anforderungen entspricht. Es ist die ideale Kombination aus modernem Design und Funktionalität, die eine vollwertige Nutzfläche bietet und den Bedürfnissen großer Familien oder Mehrgenerationenhaushalte gerecht wird. Calluna ist voll funktionsfähig und bezugsfertig und bietet Komfort, Freiheit und Luxus auf jedem Quadratmeter. Dieses Haus ist ideal für vollwertige Familien sowie mehrere Generationen, bei dem jedes Detail auf Komfort und Lebensqualität ausgelegt ist.

Verfügbare Hausmodelle CALLUNA

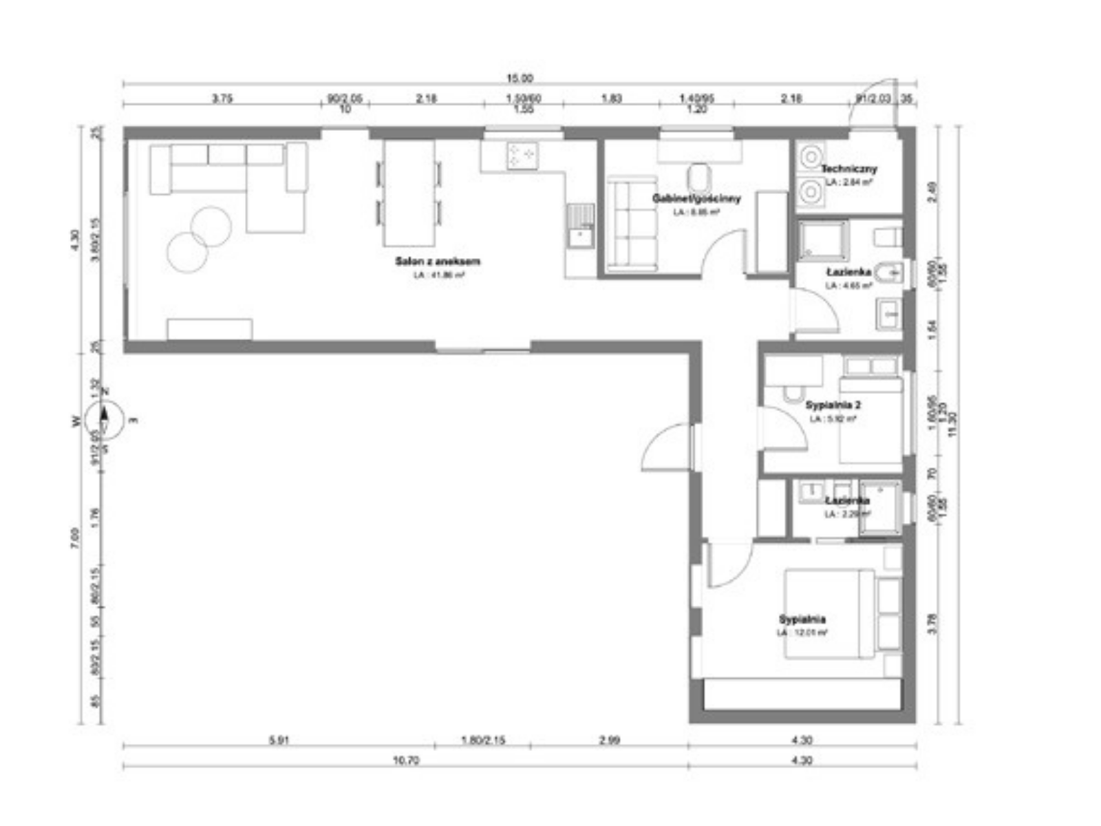
HAUS CALLUNA 95

Abmessungen des Hauses:

MOD 1 - 4,30 m x 15,00 m

MOD 2 - 4,30 m x 7,00 m 

Höhe: 

MOD 1 - 3,90 m SATTELDACH

MOD 2 - 3,20 m FLACHDACH

Wohnfläche (Erdgeschoss): 78,20 m²

Baugrundfläche: 95,00 m²

ADRESSE

ul. Dworcowa 24

62-230 Witkowo, POLEN

KONTAKT

+48 782-271-267

energiehelden.wn@gmail.com

MENÜ

Strona www stworzona w kreatorze WebWave.

FOLGEN SIE UNS